projet de transformation de chais en résidence secondaire.
EXISTANT
lien Google street view
Plan
vue SO
vue SE


PROJET
vue SE
vue NE
vue NO
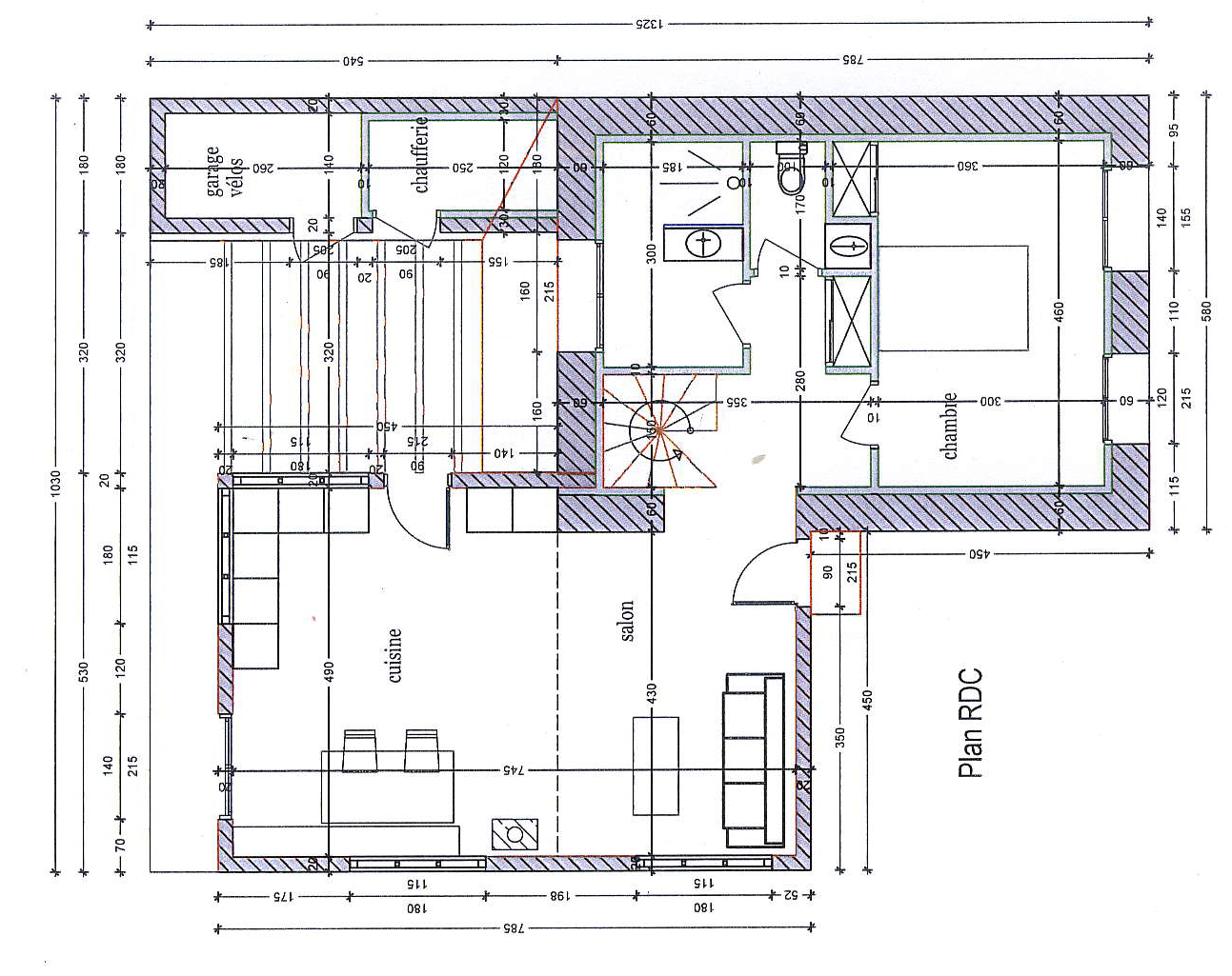
Plan Rez
Plan Etage
Coupe
permis de construire


Progression du chantier
fondations
Hourdis
Charpente
Toiture
Novembre 2017
Décembre 2017
Mars 2018
Juillet 2018
ambiance 2021

En vacances á Mayan
mode d'emploi
que faire ?